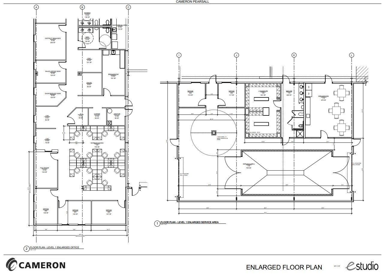
Pearsall Test Facility Expansion

Scope: Facility Expansion

Location: Pearsall, TX

Category: Industrial

Date Completed: 2013

Previous
Previous

Turbo Drill

Next
Next

LeTourneau Campus